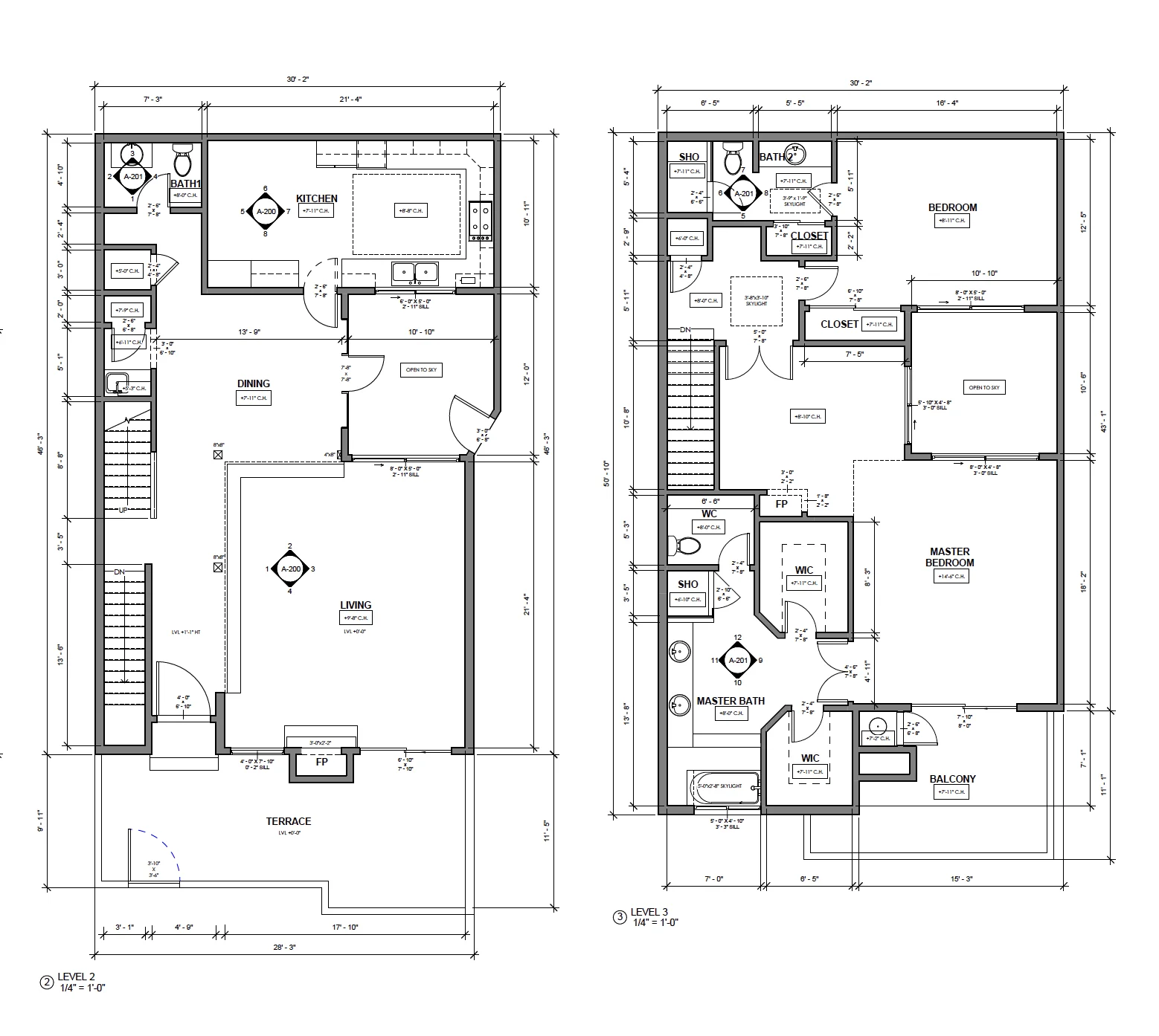
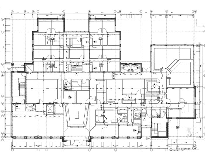
As Built Drawing
As Built Drawing - Also simply called “as builts,” these drawings are an important part of new construction, renovation, and maintenance. Web in construction projects, “ as built ” drawings are used to track the many changes from the original building plans that take place during the construction of a building. Also simply called “as builts,” these drawings are an important part of new construction, renovation, and maintenance. Web in construction projects, “ as built ” drawings are used to track the many changes from the original building plans that take place during the construction of a building. Also simply called “as builts,” these drawings are an important part of new construction, renovation, and maintenance. Web in construction projects, “ as built ” drawings are used to track the many changes from the original building plans that take place during the construction of a building. Web in construction projects, “ as built ” drawings are used to track the many changes from the original building plans that take place during the construction of a building. Also simply called “as builts,” these drawings are an important part of new construction, renovation, and maintenance. Web in construction projects, “ as built ” drawings are used to track the many changes from the original building plans that take place during the construction of a building. Also simply called “as builts,” these drawings are an important part of new construction, renovation, and maintenance. Web in construction projects, “ as built ” drawings are used to track the many changes from the original building plans that take place during the construction of a building. Also simply called “as builts,” these drawings are an important part of new construction, renovation, and maintenance. Also simply called “as builts,” these drawings are an important part of new construction, renovation, and maintenance. Web in construction projects, “ as built ” drawings are used to track the many changes from the original building plans that take place during the construction of a building. Also simply called “as builts,” these drawings are an important part of new construction, renovation, and maintenance. Web in construction projects, “ as built ” drawings are used to track the many changes from the original building plans that take place during the construction of a building. Also simply called “as builts,” these drawings are an important part of new construction, renovation, and maintenance. Web in construction projects, “ as built ” drawings are used to track the many changes from the original building plans that take place during the construction of a building. Also simply called “as builts,” these drawings are an important part of new construction, renovation, and maintenance. Web in construction projects, “ as built ” drawings are used to track the many changes from the original building plans that take place during the construction of a building. Also simply called “as builts,” these drawings are an important part of new construction, renovation, and maintenance. Web in construction projects, “ as built ” drawings are used to track the many changes from the original building plans that take place during the construction of a building. Also simply called “as builts,” these drawings are an important part of new construction, renovation, and maintenance. Web in construction projects, “ as built ” drawings are used to track the many changes from the original building plans that take place during the construction of a building. Also simply called “as builts,” these drawings are an important part of new construction, renovation, and maintenance. Web in construction projects, “ as built ” drawings are used to track the many changes from the original building plans that take place during the construction of a building. Web in construction projects, “ as built ” drawings are used to track the many changes from the original building plans that take place during the construction of a building.Everything You Need To Know About As Built Plans & Documents Jay Cad
What Are AsBuilt Drawings? We Explain In Detail MJI Design
As built Drawings NYC Firm providing accurate Asbuilt drawings
As Built Drafting and Drawing Services Advenser
Asbuilt Drawing Software PlanGrid
As Built Drawings, As Built Drawing, and As Constructed Drawings Gallery
As Built Drawings Gallery CAD Drawings
Design Presentation Associates AsBuilt Drawings
What Are AsBuilt Drawings? Definition + Guide BigRentz
What are AsBuilt Drawings and Why are they Important? The Constructor
Also Simply Called “As Builts,” These Drawings Are An Important Part Of New Construction, Renovation, And Maintenance.
Related Post:






