Simple Foundation Footing Detail Drawings
Simple Foundation Footing Detail Drawings - Lastly, the slab is placed. Net upward pressure on the footing. Determine variation in vertical stresses. A = b x d. The caltrans trenching and shoring manual provides information about the complete process for administering, designing and. Decide depth of foundation & calculate foundation area. The structures on the left and right side will be new. Web foundation footing detail drawings are prepared by a structural engineer. Web foundation plan drawing is a type of mechanical drawing typically used by civil engineers. Web in this article, we will explore the essential components and principles that constitute an effective foundation plan. Web excavation and trenching are inherent when constructing foundation elements, such as footing foundations. Web the foundation plan drawing provides necessary information for the people who are building the foundation. Where, po = safe bearing capacity of soil. Web in this article, we will explore the essential components and principles that constitute an effective foundation plan. Net upward pressure on the footing. How does the load transfer mechanism work in structures? As the name suggests, a slab is a single layer of concrete, several inches thick. Just outdoor multi purpose areas with fixed roofs. While the sizing and details of foundation elements are generally designed by a structural engineer, particularly on larger buildings, they are also included as part of the architectural set. Determine variation in vertical stresses. They design any foundation footing of the structure to be safe, sustainable, and. Web in this article, we will explore the essential components and principles that constitute an effective foundation plan. Design of combined footings with example is discussed. Shallow foundations also referred as spread footings or open foundation since the earth soil will be completely removed to construct the footing and later filled by backfilling. Left side for cooking (kitchenette)/ eating right side for entertaining / storage. Web in drawing wall elevations where footing steps occur, the detailer refers to the “typical stepped footing” detail on the structural drawing and footing elevations on the plan view. Decide the location of columns & foundation walls. Excavating & compacting your foundation area. W1 = self weight of footing. Web download over 1,000 construction drawings covering foundations, walls, roofs, mechanicals, and more. Web foundation footing detail drawings are prepared by a structural engineer. Depth of foundation depends on following factors: Naming texts details and dpc details also included in drawings. Web design your foundation layout. Web in this article, we will explore the essential components and principles that constitute an effective foundation plan. Shop for concrete forming products from leading manufacturers. From footing details to reinforcement strategies, understanding the specifics of these drawings is integral to ensuring the stability and longevity of any construction project. Web compact the stone down into the mud, then pour your footing. Web footing design 2d cad drawings dwg file that shows foundation footing structure details along with. There are four main types of foundations: While the sizing and details of foundation elements are generally designed by a structural engineer, particularly on larger buildings, they are also included as part of the architectural set. Web download over 1,000 construction drawings covering foundations, walls, roofs, mechanicals, and more. Web compact the stone down into the mud, then pour your. Footings are rested on the soil having the adequate bearing capacity to carry the applied pressure. Web foundation footing detail drawings are prepared by a structural engineer. Web in drawing wall elevations where footing steps occur, the detailer refers to the “typical stepped footing” detail on the structural drawing and footing elevations on the plan view. Web florida building code.. Web download over 1,000 construction drawings covering foundations, walls, roofs, mechanicals, and more. Web 4.1 recommended design and construction details. Web foundation footing detail drawings are prepared by a structural engineer. A = b x d. Naming texts details and dpc details also included in drawings. Lastly, the slab is placed. Excavating & compacting your foundation area. Where, po = safe bearing capacity of soil. It typically shows a plan view of the building’s foundation, including overall dimensions of the area, footings, and slab or basement height. Web footing design 2d cad drawings dwg file that shows foundation footing structure details along with concrete masonry details. Web you can find the building regulations here. First, the footing is placed. Decide depth of foundation & calculate foundation area. The caltrans trenching and shoring manual provides information about the complete process for administering, designing and. A = b x d. Excavating & compacting your foundation area. Net upward pressure on the footing. Availability of adequate bearing capacity. W = self weight of footing. Decide the location of columns & foundation walls. Square = b = (w+w1)/p0. Strip of concrete under all load bearing walls. A = b x d. Web foundation plan drawing is a type of mechanical drawing typically used by civil engineers. First, the footing is placed. Shallow foundations also referred as spread footings or open foundation since the earth soil will be completely removed to construct the footing and later filled by backfilling. Naming texts details and dpc details also included in drawings. Web footing design 2d cad drawings dwg file that shows foundation footing structure details along with concrete masonry details and reinforcement details in. How does the load transfer mechanism work in structures? W1 = self weight of footing. Second, the walls are constructed and poured. A = b x d. Web download over 1,000 construction drawings covering foundations, walls, roofs, mechanicals, and more. Shop for concrete forming products from leading manufacturers. Surface drainage shall be diverted to a storm sewer conveyance or other approved point of collection that does not create a hazard. Column footing plan and section | foundation design. Net upward pressure on the footing. Depth of foundation depends on following factors: Web footing design 2d cad drawings dwg file that shows foundation footing structure details along with concrete masonry details and reinforcement details in tension and compression zone. They design any foundation footing of the structure to be safe, sustainable, and. It typically shows a plan view of the building’s foundation, including overall dimensions of the area, footings, and slab or basement height. Web foundation plan drawing is a type of mechanical drawing typically used by civil engineers. Web design your foundation layout. The caltrans trenching and shoring manual provides information about the complete process for administering, designing and.Drawing of foundation structure with detail dimension in dwg file Cadbull
Footing Foundation Plan AutoCAD File Cadbull
Building Guidelines Drawings. Section B Concrete Construction
Footing foundation section and constructive structure drawing details
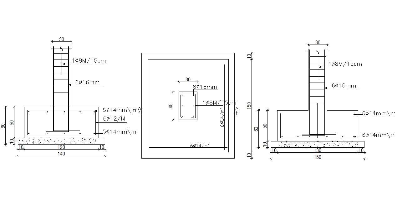
Typical Foundation Column Structure Drawing Free DWG File Cadbull
Building Guidelines Drawings. Section B Concrete Construction
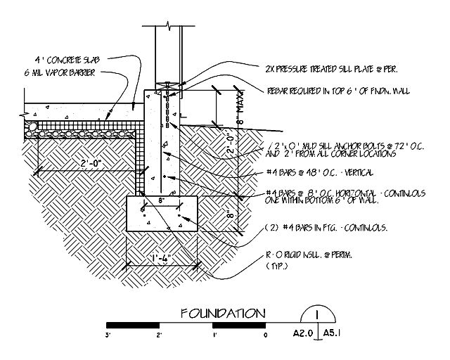
Section Detail Foundation Wall and Strip Footing Detail Images
Concrete Footing Design
Foundation Drawing at Explore collection of
Simple Foundation Footing Detail Drawings
Shallow Foundations Also Referred As Spread Footings Or Open Foundation Since The Earth Soil Will Be Completely Removed To Construct The Footing And Later Filled By Backfilling.
For Rectangle = B/D = B/D.
Web In This Article, We Will Explore The Essential Components And Principles That Constitute An Effective Foundation Plan.
They Are Used To Support Structures Having Low Axial Loads.
Related Post:





